Rekonstrukce zahradní chaty
¨Klient si přál navrhnout moderní dvoupodlažní dřevostavbu místo zahradní chaty o zastavěné ploše přibližně 59 m². Mým úkolem bylo vytvořit kompletní projekt — od nové dispozice interiéru přes fasádu až po řešení zahrady a wellness zázemí.
Výsledkem je design, který zachovává charakter původního místa, ale zároveň přináší současný způsob bydlení a komfortní funkční uspořádání. Velká okna otevírají interiér směrem do zahrady a propojují ho s okolní přírodou po celý rok.

Fasáda a architektonické řešení
Nová podoba domu kombinuje moderní architektonický styl s přírodními materiály, které působí přirozeně a harmonicky v kontextu okolní přírody.
Dominantním prvkem je venkovní krb obložený kamenem, který dodává stavbě charakter a propojuje dům se zahradou. Velká okna přinášejí lehkost, světlo a vizuální kontakt s okolím.
Terasa nabízí pohodlné posezení, relax a přístup do wellness zóny.
Design fasády pracuje s kontrastem dřeva, antracitových ploch a kamene, což vytváří vyvážený, současný a elegantní výraz, který však není rušivě moderní.
Dům přirozeně zapadá do svého prostředí a respektuje původní charakter pozemku.

Dům z této strany ukazuje výrazné svislé dřevěné prvky a kompaktní hmotu objektu. V popředí je zachovaná studna jako připomínka původního charakteru pozemku.

Večerní atmosféra zvýrazňuje kombinaci dřeva, kamene a antracitu. Světlo dopadá na kamenný obklad krbu, terasa nabízí relax a přístup do wellnes zóny.

Chatu v údolí obklopují lesy

"Tady by mohlo být wellnes :-)"
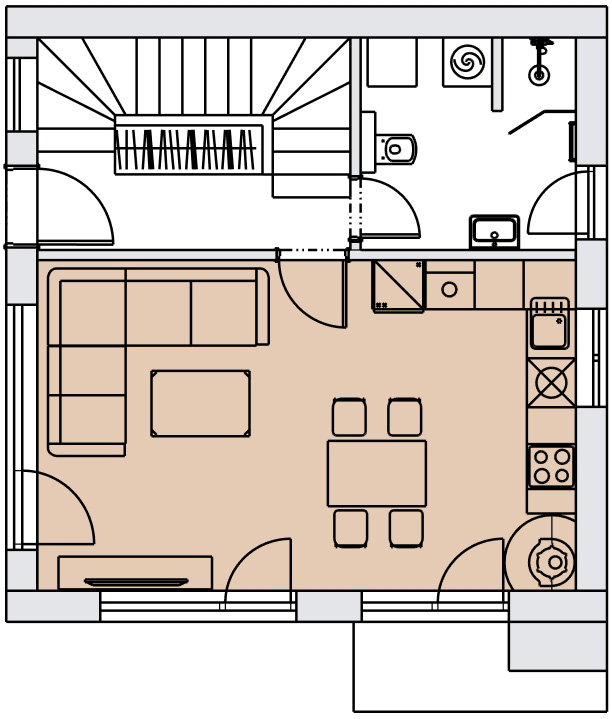
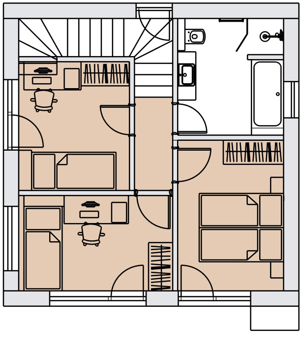
Dispozice: Maximum funkčnosti v přiděleném prostoru
Původní půdorys nebylo možné zvětšit, a proto byl klíčem k úspěchu promyšlený návrh dispozičního řešení.
1. Nadzemní podlaží
- obývací pokoj s výhledem do zahrady a východem na terasu s venkovním krbem
- kompaktní, ale plně funkční kuchyně s jídelním stolem a krbovými kamny
- malá koupelna spojená s technickou místností
- předsíň s úložnými prostory a s schodištěm do 2. NP




2. Nadzemní podlaží
- dva pokoje využitelné jako dětské pokoje, pokoje pro hosty či pracovny
- hlavní ložnice
- koupelna s vanou i sprchovým koutem






Závěr
Projekt ukazuje, že i rekonstrukce malého objektu s pevně daným půdorysem může přinést hezké, moderní a funkční bydlení. Návrh propojuje požadavky klienta, charakter pozemku i současné estetické a technické možnosti do harmonického celku. Dům tak získal nejen novou vizuální identitu, ale i zcela novou kvalitu života pro své budoucí uživatele.
